Agenda una visita con Fiorella Saldarriaga

ALQUILER DE LOCAL COMERCIAL EN SAN ISIDROKx 15068

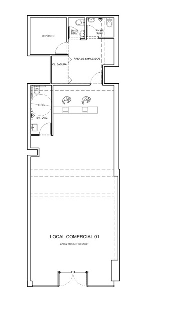
Local Comercial en San Isidro , Area 120 m²

9
En alquiler
S/. 13,500
Faustino Sanchez Carrion san isidro

Área ocupada: 120 m²

ALQUILER DE LOCAL COMERCIAL EN SAN ISIDRO

ALQUILER DE LOCAL COMERCIAL EN SAN ISIDRO

Ubicación: Av. Faustino Sánchez Carrión xxx media cuadra de Salaverry San isidro

 

Área 120.70 m2

Primer piso

Zonificación CZ

Tiene 8 m2 de frente

 

PRECIO DE ALQUILER S/ 13.500

 

CITAS FIORELLA: 9.*8.*2.*0.*6.*3.*6.*3.*9

COD.: MP

600

Faustino Sanchez Carrion san isidro
Diseño: